| 倉庫・事務所 | 駅近 駐車スペース付 | |
| 物件番号 | 3359997 |
|
|---|---|---|
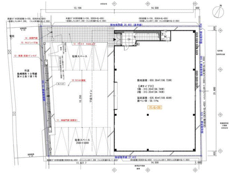
| 所在地 | 兵庫県神戸市 東灘区魚崎南町3丁目 | |
| 沿線/駅 | 阪神電鉄本線/魚崎駅徒歩10分 | |
| 賃料(月額) | 302.5万円 (坪単価:15,964円) | |
| 保証金 | 2,750万円 (解約引:907.5万円) | |
| 面積 |
建物面積:626.4m²/189.5坪 敷地面積:650.38m²/196.7坪 |
|
| 構造/階数 | 鉄骨造/2階建ての1~2階部分 | |
| 各階面積 | 1F:313.2m²/94.74坪 2F:313.2m²/94.74坪 | |
| 接道状況 | ||
| 引渡し | 予定 | |
| 築年月 | 2026/5 | |
| 用途地域 | 準工業地域 | |
| 設備関連 | 電気 上水道 給湯 トイレ専用 トイレ2箇所 エアコン 駐車スペース有(前面空地) 事務所有 1Fフリースペース フォークリフト用電源、電動シャッター 2Fオフィススペース 個別空調、OAフロア、男女別トイレ | |
| 周辺状況 | *近隣民家有 **建ぺい率60%・容積率200% *準防火地域 | |
| その他 | *貸主指定火災保険加入要 *入居にともなう改装工事については、貸主指定業者工事とさせていただきます。 | |
| 登録情報 |
登録日:2026-02-13 取引形態:仲介 |
|
| 大型車輌 | 駐車場 | 近隣住宅 | プラットホーム | 事務所 | クレーン | リフト/EV |
|---|---|---|---|---|---|---|
| - |
※大型車両・近隣住宅欄の「可」・「無」の表示については住宅地図上から判断したものです。実際については現地をご確認ください。
「全文キーワード」による検索は、大型車両・近隣住宅などの「可・不可」「有・無」の項目は検索されません。
「全文キーワード」による検索は、大型車両・近隣住宅などの「可・不可」「有・無」の項目は検索されません。
- 本ページ更新中に成約することもございます。あらかじめ御了承ください。
- 物件成約の際には情報提供業者へ仲介手数料として家賃の一ヶ月分をお支払いください。
